【户型】:小跃层
【面积】:147.93
【小区】:清新家园
【风格】:现代、简约
【进度】:水电结束等待瓦工进场
【时间】:6月17日
【预算】:预算已超
04年买房,05年收房,因为种种原因,房子一直闲置,直到09年,开始有了装修的想法,结果跑去看房子,心凉了半截,当年的开发商为了省钱,外立面使用的是涂料,还是使用的劣质涂料,导致现在的房子的外立面看起来很旧,还有很多小裂纹,我们又开始纠结。好在小区的绿化做得不错,纠结到了10年,还是决定装修吧。于是,10年4月份开始准备装修。
最初,我们的想法是,装修以实用为主,不要吊顶,不要射灯,不要电视背景墙,不要固定的东西,墙面基本以白色为主,能买到的东西坚决不现场做,估计很多设计师看到我当初的想法肯定很崩溃。后来一个朋友家刚刚装修好,我们去做客,看过之后,我们都无语了,发现,不找设性计师的话,装修出来就是中老年风格(所谓中老年风格源于朋友HL君对于土而实用型风格的概括性总结)。于是,我们决定还是找设计师,号称要做中国当代经济适用风格。

户型图
阁楼
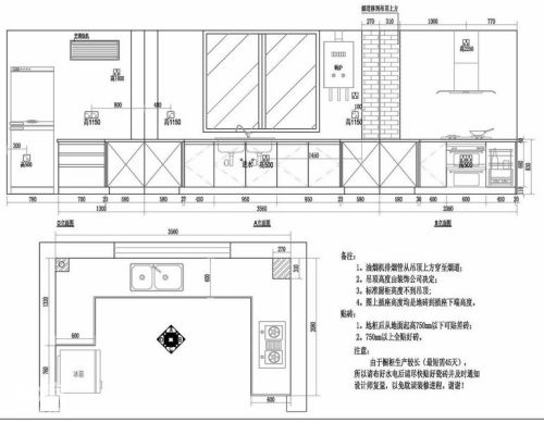
这个是橱柜设计师的第一稿设计图。其中,消毒柜的位置,听很多人说这样放的话,太低了,使用起来不方便.
对于,第二稿,原来我是想做成L型,即在水槽的左边做个半高柜,但是设计师说那样的会刚刚顶到窗会比较压抑。
现在的第二稿呢,做了两个高柜,我感觉也很压抑。纠结啊。现在我的想法是消毒柜做半高柜,微波炉不做嵌入的,旁边拐角处,还是不做高柜,这样会不会比较好呢?这个样的话拐角处使用起来会有点不顺,但是可以放放电饭煲和小烤箱。
第一稿
第二稿
今天忙里偷闲,发现橱柜设计师已经将方案的第三稿发给我了。先贴上来看看。
看了一下,这稿基本差不多,就是细节上可能会有些调整了。